当前位置: 首页 / 公告公示 / 规划公示

富力院士廷二期项目公示

发布时间: 2018-01-12 00:00:00
信息来源:
【字体:
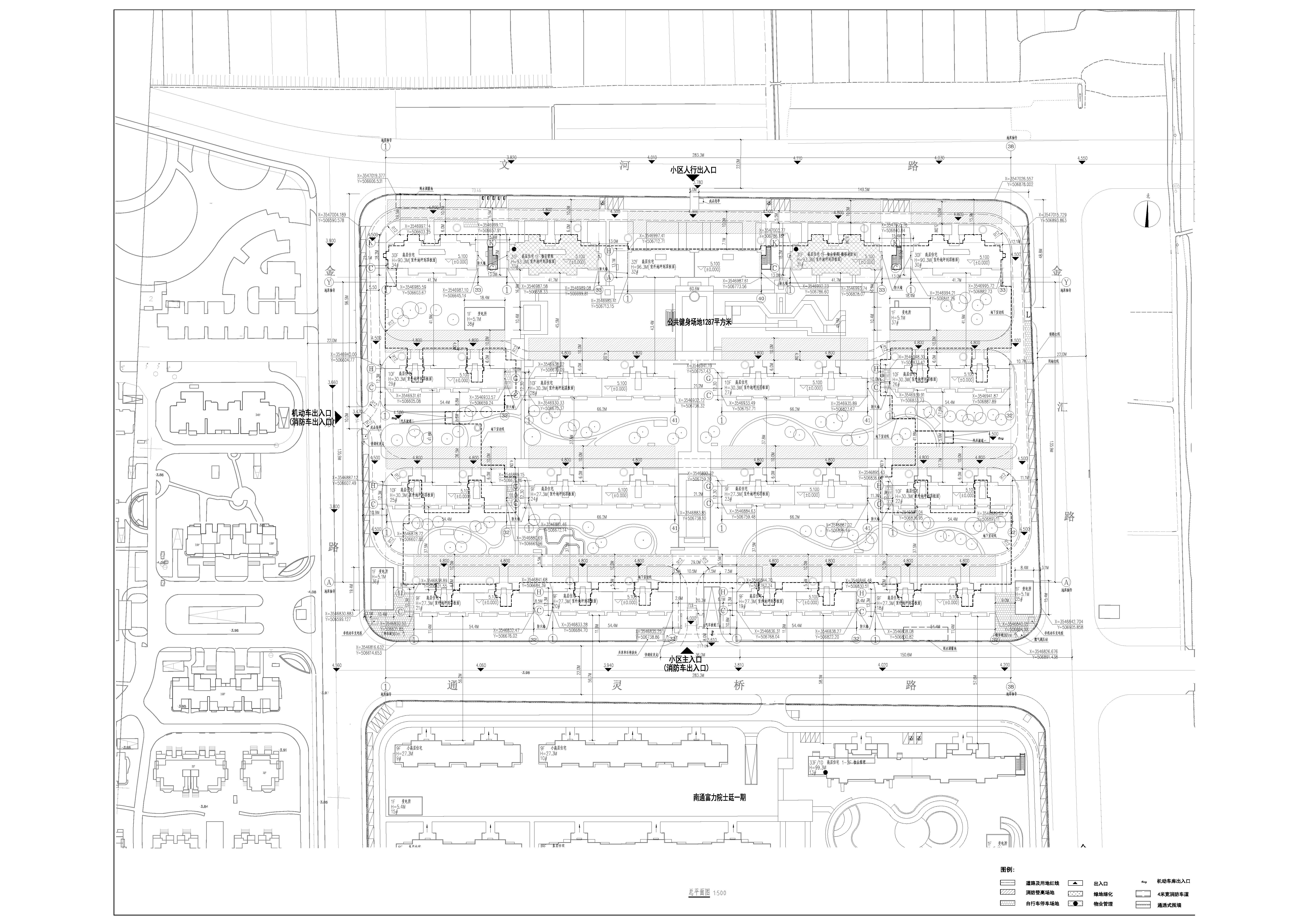
项目名称:富力院士廷二期
建设单位:南通富力房地产开发有限公司
设计单位:广州市住宅建筑设计院有限公司
用地性质:二类居住用地、商业用地
公示内容:规划总平面图
公示时间:2018.1.12-2018.1.25
联系电话:0513-86028319

 

南通富力院士廷二期--总平面20180112(报规用)1_t3-Model.jpg
(责任编辑:王甦)
扫一扫在手机打开当前页
累计次数: